×

关注微信公众号

查看: 17304|回复: 3

【心连心装饰_开工篇】*月亮湾2幢简洁明快、富有历史气息小美风~

[复制链接]

447

主题

564

帖子

1857

积分

超级版主

Rank: 8Rank: 8

积分
1857
QQ
发表于 2017-4-3 14:34:24 | 显示全部楼层 |阅读模式
装修日记
小区楼盘: 月亮湾
装修风格: 简美风格
本帖最后由 心连心装饰 于 2017-4-3 14:35 编辑

【 房    型】 套房

【设计&施工公司】心连心装饰

【设 计 师】付工

【项目经理】 余工

效果图
640.webp (1).jpg
设计说明/NOTES
不加过多修饰与约束简美风格,散发出迷人的休闲式浪漫,既有着欧式风格的华丽与贵气,又剔除了更多羁绊,同时又能寻找文化根基的新的怀旧,贵气而不失自在与随意。简美更是以功能性为优先考虑,适合追求舒服,兼顾优雅,既注重起居品质,又不过分张扬的人群。
简美风格的客厅作为待客区域,一般要求简洁明快,同时装修较其它空间要更明快光鲜,美国人喜欢有历史感的东西,总体而言,简美风格的客厅是宽敞而富有历史气息的。
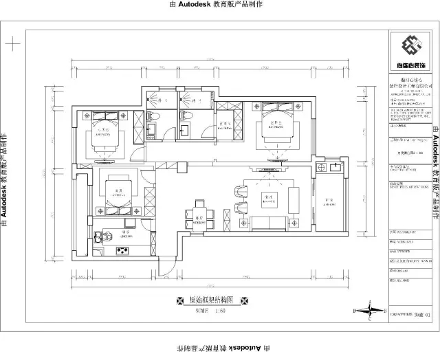
平面图
640.webp.jpg

设计师简历
640.webp (2).jpg
艺术总监:付淑贞
个人案例:台州新明半岛,台州景隆公馆,台州碧海明珠花园,新明丽江,香格里拉,维多利亚、衢州花园、紫荆丽江城、君越东方、香格里拉、香榭丽舍、枫丹白露、阳光水岸、金河湾、中央公园、春江花园、新湖兰馨苑、新湖玫瑰园、春江月、幸福家园、月亮湾、公园3号等高档小区…

设计理念:设计源于生活,一切以人为本!




回复

使用道具 举报

447

主题

564

帖子

1857

积分

超级版主

Rank: 8Rank: 8

积分
1857
QQ
 楼主| 发表于 2017-4-3 14:40:03 | 显示全部楼层
开工画面 640.webp (3).jpg
月亮湾2幢开工大吉喽!
0.gif
640.webp (4).jpg
门前走廊地面保护铺到位
640.webp (5).jpg
非常整齐整洁的地面保护,
以及鲜艳的保护门套

640.webp (6).jpg
墙面提示牌订好
640.webp (7).jpg

















回复 支持 反对

使用道具 举报

447

主题

564

帖子

1857

积分

超级版主

Rank: 8Rank: 8

积分
1857
QQ
 楼主| 发表于 2017-4-3 14:41:44 | 显示全部楼层
640.webp (8).jpg 金牌项目经理_余利宏

640.webp (9).jpg
墙面标记后续需要施工的位置
640.webp (10).jpg
现场与客户沟通
640.webp (11).jpg

640.webp (12).jpg
工鞭炮摆好,准备开工咯


回复 支持 反对

使用道具 举报

447

主题

564

帖子

1857

积分

超级版主

Rank: 8Rank: 8

积分
1857
QQ
 楼主| 发表于 2017-4-3 14:43:38 | 显示全部楼层
640.webp (13).jpg



640.webp (14).jpg

鞭炮响起,红红火火!

0 (1).gif

640.webp (15).jpg

业主敲下开工第一锤!

640.webp (16).jpg



合照一张^_^

回复 支持 反对

使用道具 举报

您需要登录后才可以回帖 登录 | 立即注册

本版积分规则

24小时服务热线

131-8570-9118
8:30-17:30(工作时间)
客服邮箱:1417860721@qq.com
心连心微信公众号

Copyright © 2008-2017 QZXLXZS Inc. All Rights Reserved.

备案号:浙ICP备11006888号