×

关注微信公众号

查看: 15012|回复: 2

【心连心装饰-开工篇】公园三号5幢 *清爽明快之感~温暖而舒适简美风 ```

[复制链接]

447

主题

564

帖子

1857

积分

超级版主

Rank: 8Rank: 8

积分
1857
QQ
发表于 2017-4-3 10:36:52 | 显示全部楼层 |阅读模式
装修日记
小区楼盘: 公园3号
装修风格: 简美风格


【 房    型】 套房

【设计&施工公司】心连心装饰

【设 计 师】付工

【项目经理】 汪工

设计说明/NOTES
效果图
640.webp (1).jpg

640.webp (2).jpg

        美式简约装修风格,整体给人一种简约大气的气息,没有反复的空间布局,每处都格外的干净利落,而且现代实用。无论是房顶的吊灯,还是脚下的地板,没有琐碎多余的设计,表面光滑柔和,让人感觉温暖而舒适。
        美式简约装修风格的色彩单配,整体给人感觉明亮而又恬静,空间的色彩的调试没有突兀的部分,色彩单一。比如空间和地面的对比,墙面和地板的色彩对比。色彩的选择也是挑选的简单、素雅为主的颜色,整体看起来就会温馨。在浅色整体主调下,我们可以在一些特别的装饰色彩可以用一些深色系列的,但整体色系最好搭配感强。
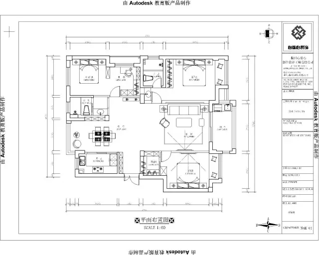
        平面图
640.webp.jpg
设计师简历
640.webp (3).jpg
艺术总监:付淑贞
个人案例:台州新明半岛,台州景隆公馆,台州碧海明珠花园,新明丽江,香格里拉,维多利亚、衢州花园、紫荆丽江城、君越东方、香格里拉、香榭丽舍、枫丹白露、阳光水岸、金河湾、中央公园、春江花园、新湖兰馨苑、新湖玫瑰园、春江月、幸福家园、月亮湾、公园3号等高档小区…

设计理念:设计源于生活,一切以人为本!






回复

使用道具 举报

447

主题

564

帖子

1857

积分

超级版主

Rank: 8Rank: 8

积分
1857
QQ
 楼主| 发表于 2017-4-3 10:41:49 | 显示全部楼层
开工画面

640.webp (4).jpg

公园3号5幢开工大吉咯~

0.gif

640.webp (5).jpg

金牌项目经理-汪卫平
在墙面标注后续施工需要注意的位置

640.webp (6).jpg

艺术总监-付工
与业主现场沟通


回复 支持 反对

使用道具 举报

447

主题

564

帖子

1857

积分

超级版主

Rank: 8Rank: 8

积分
1857
QQ
 楼主| 发表于 2017-4-3 10:44:38 | 显示全部楼层
640.webp (7).jpg

火红的开工鞭炮已准备好啦~


640.webp (8).jpg

吉时到,鞭炮响起咯~

0 (1).gif

640.webp (9).jpg

红红火火~

640.webp (10).jpg

业主敲下开工第一锤!

640.webp (11).jpg

0 (2).gif


合照一张^_^
在此非常感谢选择【心连心装饰】
接下来我们将尽心做好后续工作,
为您的新家保驾护航!
选择心连心,您放心!

回复 支持 反对

使用道具 举报

您需要登录后才可以回帖 登录 | 立即注册

本版积分规则

24小时服务热线

131-8570-9118
8:30-17:30(工作时间)
客服邮箱:1417860721@qq.com
心连心微信公众号

Copyright © 2008-2017 QZXLXZS Inc. All Rights Reserved.

备案号:浙ICP备11006888号