×

关注微信公众号

查看: 17695|回复: 5

【心连心装饰_开工篇】香榭丽舍16幢复式 * 回归自然的亲近感,北欧的纯净艺术 ```

[复制链接]

447

主题

564

帖子

1857

积分

超级版主

Rank: 8Rank: 8

积分
1857
QQ
发表于 2017-4-3 09:26:48 | 显示全部楼层 |阅读模式
装修日记
小区楼盘: 香榭丽舍
装修风格: 北欧风格
  【房    型】 套房

                     【设计&施工公司】心连心装饰

【设 计 师】付工

  【项目经理】 汪工

设计说明/NOTES


640.webp (2).jpg

客     厅

       北欧风格是注重人与自然、社会、与环境的有机的科学的结合,它的身上集中体现了绿色设计、环保设计、可持续发展设计的理念;它显示了对手工艺传统和天然材料的尊重与偏爱,它在形式上更为柔和与有机,因而富有浓厚的人情味,它的家居风格很大程度体现在家具的设计上。注重功能,简化设计,线条简练,多用明快的中性色。


640.webp (3).jpg

主     卧

北欧风格常用的装饰材料主要

有木材、石材、玻璃和铁艺等,

都无一例外地保留这些材质的原始质感。


640.webp (4).jpg

次     卧

在色调上以浅色系为主:白色、米色、浅木色等,
而材质方面以自然的元素,
如木、藤、柔软质朴的纱麻布品等,
所使用材质、色彩都可兼容,而且比重拿捏得当。
空间给人的感觉干净明朗,绝无杂乱之感!


回复

使用道具 举报

447

主题

564

帖子

1857

积分

超级版主

Rank: 8Rank: 8

积分
1857
QQ
 楼主| 发表于 2017-4-3 09:31:32 | 显示全部楼层
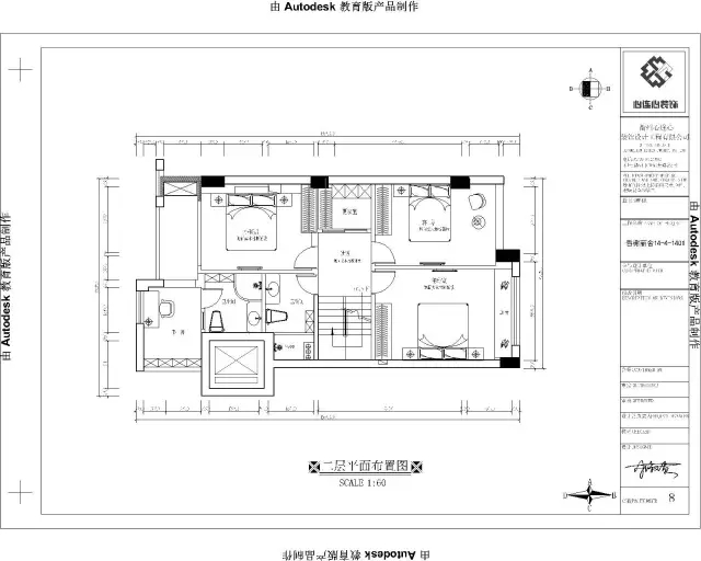
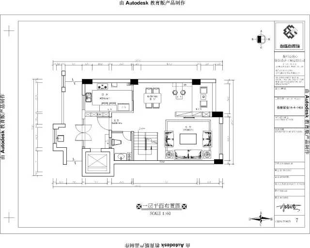
平面图

640.webp.jpg


640.webp (1).jpg



回复 支持 反对

使用道具 举报

447

主题

564

帖子

1857

积分

超级版主

Rank: 8Rank: 8

积分
1857
QQ
 楼主| 发表于 2017-4-3 09:27:47 | 显示全部楼层

设计师简历
640.webp (5).jpg
艺术总监:付淑贞
个人案例:台州新明半岛,台州景隆公馆,台州碧海明珠花园,新明丽江,香格里拉,维多利亚、衢州花园、紫荆丽江城、君越东方、香格里拉、香榭丽舍、枫丹白露、阳光水岸、金河湾、中央公园、春江花园、新湖兰馨苑、新湖玫瑰园、春江月、幸福家园、月亮湾、公园3号等高档小区…

设计理念:设计源于生活,一切以人为本!




回复 支持 反对

使用道具 举报

447

主题

564

帖子

1857

积分

超级版主

Rank: 8Rank: 8

积分
1857
QQ
 楼主| 发表于 2017-4-3 09:29:10 | 显示全部楼层
640.webp (6).jpg
香榭丽舍16幢 开工大吉咯!~

0 (1).gif


640.webp (7).jpg

640.webp (8).jpg

金牌项目经理-汪卫平
汪工简介:汪工有着多年的实战经验,有较强实际动手能力和团体协作精神,有责任心!对施工质量意识强,管理严密,具有较强的施工管理能力。

回复 支持 反对

使用道具 举报

447

主题

564

帖子

1857

积分

超级版主

Rank: 8Rank: 8

积分
1857
QQ
 楼主| 发表于 2017-4-3 09:30:31 | 显示全部楼层
640.webp (9).jpg
现场开始准备开工


640.webp (10).jpg
开工鞭炮准备完毕 ~
等待吉时 ···

640.webp (11).jpg
吉时到!鞭炮响起咯 ~

640.webp (12).jpg
红红火火!



回复 支持 反对

使用道具 举报

447

主题

564

帖子

1857

积分

超级版主

Rank: 8Rank: 8

积分
1857
QQ
 楼主| 发表于 2017-4-3 09:33:39 | 显示全部楼层
640.webp (13).jpg

业主敲下开工第一锤!


640.webp (14).jpg


0.gif


合照一张^_^
在此非常感谢选择【心连心装饰】
接下来我们将尽心做好后续工作,
为您的新家保驾护航!
选择心连心,您放心!

回复 支持 反对

使用道具 举报

您需要登录后才可以回帖 登录 | 立即注册

本版积分规则

24小时服务热线

131-8570-9118
8:30-17:30(工作时间)
客服邮箱:1417860721@qq.com
心连心微信公众号

Copyright © 2008-2017 QZXLXZS Inc. All Rights Reserved.

备案号:浙ICP备11006888号