×

关注微信公众号

查看: 15633|回复: 4

【心连心装饰-开工篇】阳光水岸4幢 * 含蓄大气的简美风格 ```

[复制链接]

447

主题

564

帖子

1857

积分

超级版主

Rank: 8Rank: 8

积分
1857
QQ
发表于 2017-4-2 10:10:30 | 显示全部楼层 |阅读模式
装修日记
小区楼盘: 阳光水岸
装修风格: 简美风格
效果图
640.webp (1).jpg
设计说明:    简美风格家具简化了仿古风格一些复杂和繁琐的元素,但保持了原有的大弧度、大线条,使其看起来仍然含蓄而又大气,融入现代简约风格的设计,使家具看上去更富有现代的韵味,也更加适合现代都市人的生活节奏,突出体现了一种“简约的奢华”。

       根据个人的偏好,多用温馨柔软的成套布艺来装点,同时在软装和用色上统一协调。让美式的风格洋溢着春天的气息。
设计师简历
640.webp (2).jpg
艺术总监:付淑贞
个人案例:台州新明半岛,台州景隆公馆,台州碧海明珠花园,新明丽江,香格里拉,维多利亚、衢州花园、紫荆丽江城、君越东方、香格里拉、香榭丽舍、枫丹白露、阳光水岸、金河湾、中央公园、春江花园、新湖兰馨苑、新湖玫瑰园、春江月、幸福家园、月亮湾、公园3号等高档小区…

设计理念:设计源于生活,一切以人为本!



回复

使用道具 举报

447

主题

564

帖子

1857

积分

超级版主

Rank: 8Rank: 8

积分
1857
QQ
 楼主| 发表于 2017-4-2 10:12:00 | 显示全部楼层
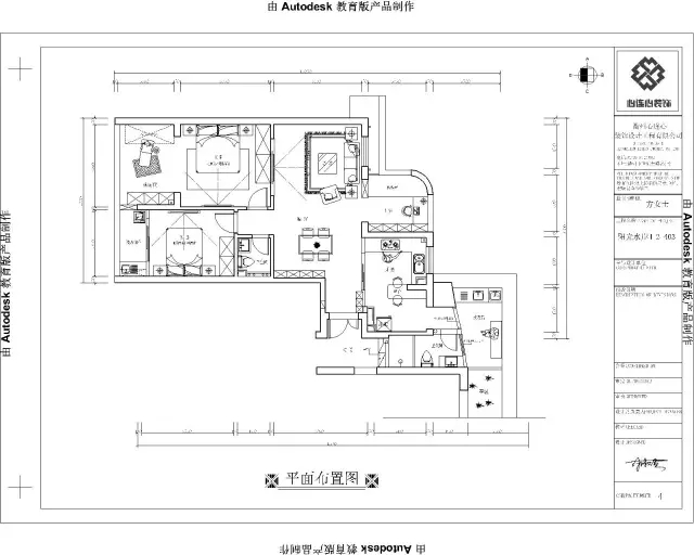
平面图
640.webp.jpg
恭喜阳光水岸4幢方女士家开工大吉咯~

640.webp (3).jpg
回复 支持 反对

使用道具 举报

447

主题

564

帖子

1857

积分

超级版主

Rank: 8Rank: 8

积分
1857
QQ
 楼主| 发表于 2017-4-2 10:13:21 | 显示全部楼层
开工画面
640.webp (4).jpg
工程部-邱总监(金牌质检)
墙面提示牌订好

640.webp (5).jpg
墙地面空鼓检测
640.webp (6).jpg
非常整齐整洁的地面保护,
以及鲜艳的保护门套


回复 支持 反对

使用道具 举报

447

主题

564

帖子

1857

积分

超级版主

Rank: 8Rank: 8

积分
1857
QQ
 楼主| 发表于 2017-4-2 10:14:25 | 显示全部楼层
640.webp (7).jpg
套上燃气表防尘保护袋
640.webp (8).jpg
艺术总监-付工
与业主沟通后续施工问题






回复 支持 反对

使用道具 举报

447

主题

564

帖子

1857

积分

超级版主

Rank: 8Rank: 8

积分
1857
QQ
 楼主| 发表于 2017-4-2 10:15:43 | 显示全部楼层
640.webp (9).jpg 业主敲下开工第一锤!
640.webp (10).jpg

0.gif
合照一张^_^
在此非常感谢选择【心连心装饰】
接下来我们将尽心做好后续工作,
为您的新家保驾护航!
选择心连心,您放心!
选择心连心,您放心!



回复 支持 反对

使用道具 举报

您需要登录后才可以回帖 登录 | 立即注册

本版积分规则

24小时服务热线

131-8570-9118
8:30-17:30(工作时间)
客服邮箱:1417860721@qq.com
心连心微信公众号

Copyright © 2008-2017 QZXLXZS Inc. All Rights Reserved.

备案号:浙ICP备11006888号