×

关注微信公众号

查看: 9574|回复: 0

枫丹白露15幢 - 舒适雅致简美风格

[复制链接]

447

主题

564

帖子

1857

积分

超级版主

Rank: 8Rank: 8

积分
1857
QQ
发表于 2016-12-12 15:04:26 | 显示全部楼层 |阅读模式
装修日记
小区楼盘: 枫丹白露
装修风格: 简美风格
本帖最后由 心连心装饰 于 2017-4-1 16:24 编辑

枫丹白露15幢舒适雅致简美风格

20160528102919186.jpg


客厅作为待客区域,一般要求简洁明快,

同时装修较其它空间要更明快光鲜,

美国人喜欢有历史感的东西,总体而言,

简美风格的客厅是宽敞而富有历史气息的。

一楼客厅多以象牙白为主,

以浅色为主深色为辅。



201605281039088976.jpg


二楼的客厅添加了更多的深色元素,

上下楼有强烈的对比,

二楼有着更为安逸、舒适的居住环境。

相比浓厚美国风味欧式风格,

简美更为清新,

也更符合中国人内敛的审美观念


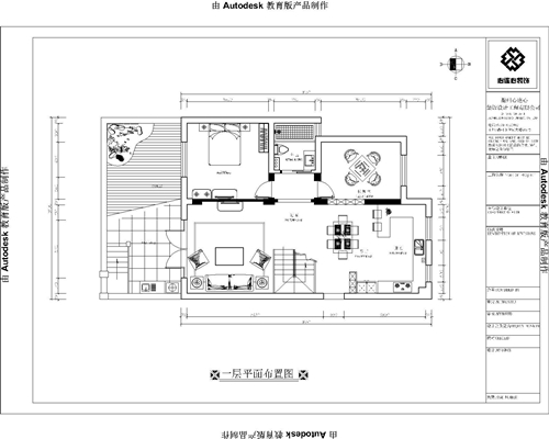
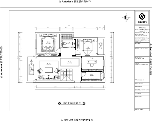
平面布置图

201605281039476655.jpg

201605281040177715.jpg


设计师简历

201605281042207099.jpg

首席设计师:付淑贞

个人案例:台州新明半岛,台州景隆公馆,台州碧海明珠花园,新明丽江,香格里拉,维多利亚、衢州花园、紫荆丽江城、君越东方、香格里拉、香榭丽舍、枫丹白露、阳光水岸、金河湾、中央公园、春江花园、新湖兰馨苑、新湖玫瑰园、春江月、幸福家园等高档小区…

设计理念:设计源于生活,一切以人为本!

回复

使用道具 举报

您需要登录后才可以回帖 登录 | 立即注册

本版积分规则

24小时服务热线

131-8570-9118
8:30-17:30(工作时间)
客服邮箱:1417860721@qq.com
心连心微信公众号

Copyright © 2008-2017 QZXLXZS Inc. All Rights Reserved.

备案号:浙ICP备11006888号