×

关注微信公众号

查看: 10726|回复: 0

君悦东方9幢 - 5.20现代风新居 | 甜蜜来袭

[复制链接]

447

主题

564

帖子

1857

积分

超级版主

Rank: 8Rank: 8

积分
1857
QQ
发表于 2016-12-12 15:01:46 | 显示全部楼层 |阅读模式
装修日记
小区楼盘: 君悦东方
装修风格: 简约风格
本帖最后由 心连心装饰 于 2017-4-1 16:25 编辑

现代简约风
201605251408023594.jpg
现代简约风格,顾名思义,就是让所有的细节看上去都是非常简洁的。装修中极简便是让空间看上去非常简洁,大气。背景墙采用大理石点缀及两侧玫瑰金框架装饰能提亮整个空间。墙面米黄色是在简约主义中经常使用的颜色,因为这些颜色很难对人的视觉产生干扰的作用,无图腾、无印花的色彩更易营造低调、宁静的感觉,显得沉稳内敛。

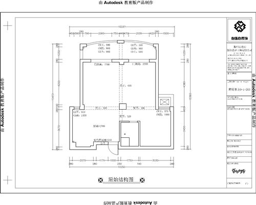
▼原始结构图
201605251409437260.jpg

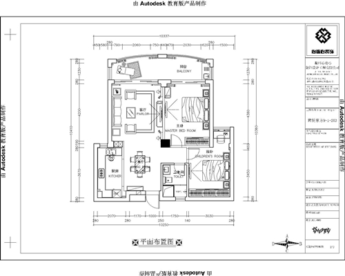
平面布置图
201605251410342613.jpg

设计师简历
201605251421532489.jpg
首席设计师:彭江胜
毕业于安徽建筑工业学院
曾就职杭州恒创装饰公司设计总监
2009年至今任衢州心连心装饰公司首席设计师
中国室内设计协会会员
衢州市知名设计师
设计理念:将生活简单化的同时,又凸显个性,实现简单,典雅的奢华!
工程案例:江西玉山别墅,世纪天成,乐业景观,石梁别墅,怡水苑别墅,衢州花园,金都西江月,维多利亚、世纪锋尚、金河湾,阳光水岸、新湖兰馨苑、新湖玫瑰园、香榭丽舍、中央公园、枫丹白露、月亮湾等高档小区。
回复

使用道具 举报

您需要登录后才可以回帖 登录 | 立即注册

本版积分规则

24小时服务热线

131-8570-9118
8:30-17:30(工作时间)
客服邮箱:1417860721@qq.com
心连心微信公众号

Copyright © 2008-2017 QZXLXZS Inc. All Rights Reserved.

备案号:浙ICP备11006888号