×

关注微信公众号

查看: 11086|回复: 0

枫丹白露17幢 - 呈现简美艺术

[复制链接]

447

主题

564

帖子

1857

积分

超级版主

Rank: 8Rank: 8

积分
1857
QQ
发表于 2016-12-12 14:55:19 | 显示全部楼层 |阅读模式
装修日记
小区楼盘: 枫丹白露
装修风格: 简美风格
本帖最后由 心连心装饰 于 2017-4-1 16:27 编辑

本案为不加过多修饰与约束的简美风格,以简单清新的色彩搭配!散发出迷人的休闲式浪漫,既有着华丽与贵气,又剔除了更多羁绊,贵气而不失自在与随意,更是以功能性为优先考虑。
201605121015529308.jpg

20160512101618233.jpg

简美风格的特色是将设计的元素、色彩、照明、原材料简化到最少的程度。但是对材料的色彩质感要求很高。因此,简约的空间设计非常含蓄,往往能起到以少胜多,以简胜繁的效果。

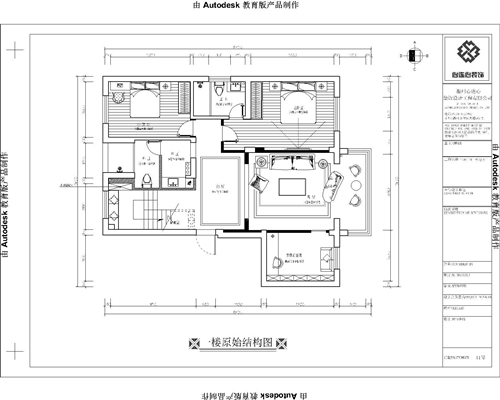
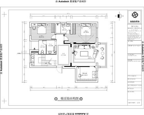
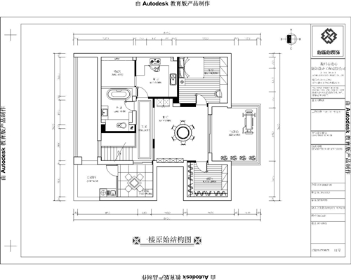
平面布置图
201605121016364093.jpg
201605121016423160.jpg
201605121017221328.jpg


设计师简历
201605121018242854.jpg
首席设计师:付淑贞
个人案例:台州新明半岛,台州景隆公馆,台州碧海明珠花园,新明丽江,香格里拉,维多利亚、衢州花园、紫荆丽江城、君越东方、香格里拉、香榭丽舍、枫丹白露、阳光水岸、金河湾、中央公园、春江花园、新湖兰馨苑、新湖玫瑰园、春江月、幸福家园等高档小区…
设计理念:设计源于生活,一切以人为本!
回复

使用道具 举报

您需要登录后才可以回帖 登录 | 立即注册

本版积分规则

24小时服务热线

131-8570-9118
8:30-17:30(工作时间)
客服邮箱:1417860721@qq.com
心连心微信公众号

Copyright © 2008-2017 QZXLXZS Inc. All Rights Reserved.

备案号:浙ICP备11006888号