×

关注微信公众号

查看: 15022|回复: 0

香榭丽舍16栋——<新中式>大而不空、厚而不重,有格调又不显压抑

[复制链接]

447

主题

564

帖子

1857

积分

超级版主

Rank: 8Rank: 8

积分
1857
QQ
发表于 2016-12-12 14:37:43 | 显示全部楼层 |阅读模式
装修日记
小区楼盘: 香榭丽舍
装修风格: 新中式
本帖最后由 心连心装饰 于 2017-4-1 16:32 编辑

项目地址:香榭丽舍16-4-1201
建筑面积:200㎡
设计施工单位:衢州市心连心装饰工程有限公司
设计师:付工
项目经理:张工
质检员:邱工
设计风格:新中式风格
设计理念:本案以现代元素与传统元素进行了有机结合的新中式风格。将传统的经典元素进行提炼并加以丰富,融合了庄重与优雅的双重气质。本案客厅家具选配上采用了东方特色的深色沙发座椅,造型上简化了传统家具繁复的设计,融入了现代化元素,整体空间既体现了中国传统文化的神韵,又具备现代感的新设计、新理念!以现代人的审美需求,营造出有传统韵味的新中式生活空间。

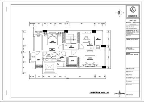
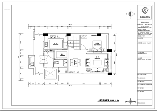
平面布置图
20160323144045387.png
201603231440545284.png

效果图——新中式风格
201603231441333912.jpg
201603231441451423.jpg

设计师简历
201603231442227600.jpg
设计师:付淑贞
2009-2011年在台州市椒江区东易日盛-易家装饰任设计师
2011-2014年在上海聚通装饰台州分公司任首席设计师
2015年7月在衢州心连心装饰任首席设计师
个人案例:台州新明半岛,台州景隆公馆,台州碧海明珠花园,泊盛桃源,新明丽江,香格里拉,维多利亚、衢州花园、紫荆丽江城、君越东方、香格里拉、香榭丽舍、枫丹白露、阳光水岸、金河湾、中央公园、春江花园、新湖兰馨苑、新湖玫瑰园等高档小区

设计理念:设计源于生活,一切以人为本!

开工画面

201603231443042581.jpg

今日下午吉时香榭丽舍16-4-1201开工大吉咯!

201603231444103245.jpg

工程部邱经理准备开工准备工作啦…

201603231445135720.jpg

吉时还没到,工程部张经理现场沟通施工方案

201603231446024720.jpg

吉时到来,业主赶紧点燃开工鞭炮

201603231446342219.jpg

鞭炮响起!室外大好天气,室内大好心情!

20160323144735389.jpg

业主拿着心连心专用开工龙头锤敲下开工第一锤^^

201603231448298915.jpg

恭祝香榭丽舍16-4-1201开工大吉!红红火火,万事如意!心连心团队将全力以赴为您的新家保驾护航!选择心连心,您放心!
回复

使用道具 举报

您需要登录后才可以回帖 登录 | 立即注册

本版积分规则

24小时服务热线

131-8570-9118
8:30-17:30(工作时间)
客服邮箱:1417860721@qq.com
心连心微信公众号

Copyright © 2008-2017 QZXLXZS Inc. All Rights Reserved.

备案号:浙ICP备11006888号