×

关注微信公众号

查看: 15290|回复: 0

枫丹白露11栋开工大吉!令人心弛神往的写意空间 ~

[复制链接]

447

主题

564

帖子

1857

积分

超级版主

Rank: 8Rank: 8

积分
1857
QQ
发表于 2016-12-12 14:25:49 | 显示全部楼层 |阅读模式
装修日记
小区楼盘: 枫丹白露
装修风格: 简欧风格
本帖最后由 心连心装饰 于 2017-4-1 16:34 编辑

项目地址:枫丹白露11-4-101
建筑面积:180㎡
设计施工单位:衢州市心连心装饰工程有限公司
设计师:周工
项目经理:陈工
质检员:邱工
设计风格:简欧风格
设计理念:本案简欧风格的室内设计打破以往欧式深沉的色彩,大量使用的米黄色调,把欧式风格设计融入现代设计中浑然一体家居风格,米黄色时尚温馨不突兀,客厅的米黄色墙面与花色地毯散发出的是高贵淡雅的现代简欧味道,时尚的沙发与装饰品的摆放,让整个客厅营造出时尚、高贵、轻松、愉悦的视觉感空间。

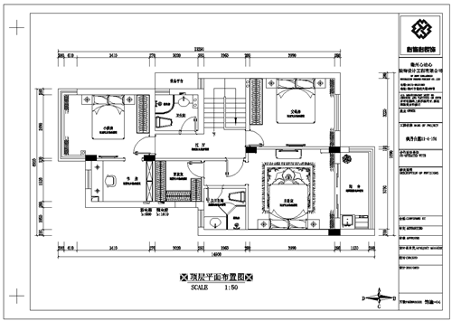
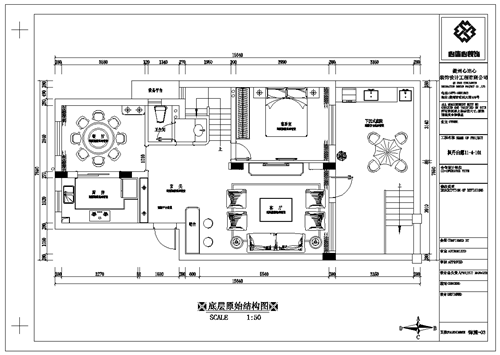
平面布置图
201603021357496.png
201603021357597098.png

效果图——简欧风格
201603021358368975.jpg
客厅

201603021359202116.jpg
主卧

设计师简历
201603021359458188.jpg
设计总监:周鹏
毕业于江西服装学院,室内设计专业
曾任杭州亚加装饰主任设计师
绍兴光大装饰首席设计师、设计总监
现任衢州心连心装饰公司设计总监
设计理念:设计的核心是一种创造行为,设计要求新、求异、求变、求不同,否则设计将不能称之为设计。
设计案例:音湖岛、衢州公园一号、维多利亚、衢州花园、新湖景城、紫荆丽江城、香格里拉、碧桂园、香榭丽舍、枫丹白露、阳光水岸、金河湾、中央公园、春江花园、雍景柯苑、月亮湾、新湖兰馨苑、新湖玫瑰园、香榭丽舍等高档小区。

开工画面

201603021400276386.jpg

恭喜枫丹白露11-4-101黄姐家今早8点开工大吉!

201603021402498609.jpg

201603021400522295.jpg

心连心专用燃气表防尘保护袋

201603021401144407.jpg

红红火火,开工大吉!

201603021401283520.jpg

工程部邱经理对墙地面进行检查,查看是否存在空鼓

201603021401455644.jpg

201603021402224937.jpg

非常感谢黄姐一家选择心连心,接下来我们一定尽心做好!给您一个舒适、环保的家!选择心连心,您放心!
回复

使用道具 举报

您需要登录后才可以回帖 登录 | 立即注册

本版积分规则

24小时服务热线

131-8570-9118
8:30-17:30(工作时间)
客服邮箱:1417860721@qq.com
心连心微信公众号

Copyright © 2008-2017 QZXLXZS Inc. All Rights Reserved.

备案号:浙ICP备11006888号