×

关注微信公众号

查看: 15742|回复: 0

中央公园8栋复式楼开工大吉!<现代奢华>低调的方式诠释奢华~

[复制链接]

447

主题

564

帖子

1857

积分

超级版主

Rank: 8Rank: 8

积分
1857
QQ
发表于 2016-12-12 14:09:04 | 显示全部楼层 |阅读模式
装修日记
小区楼盘: 中央公园
装修风格: 简约风格
本帖最后由 心连心装饰 于 2017-4-3 10:07 编辑

项目地址:中央公园8-2-102
建筑面积:200㎡
设计施工单位:衢州市心连心装饰工程有限公司
设计师:周工
项目经理:汪工
质检员:邱工
设计风格:现代奢华风格
设计理念:现代奢华以简洁的方式演绎高品质室内空间设计的“新奢华风格”新思想。“新奢华风格”是对传统奢华设计概念的一种反思。而与以往的奢华风格不同,“新奢华风格”的核心意义是用低调的方式诠释奢华,注重设计出更高品质的优质生活空间。本设计局部的线条穿插和金属材质的收口处理都彰显居家品质,功能上更是注重居室空间的布局与使用功能的完美结合!

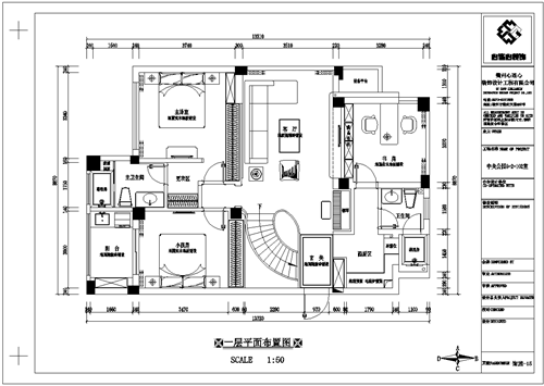
平面布置图
201601070951314863.png
201601070951379078.png

效果图——现代奢华风格
201601071008145259.jpg
底层客厅

201601071009103029.jpg
底层餐厅

201601071001578719.jpg
一层客厅

201601071044187344.jpg
主卧

201601071044392184.jpg
楼梯

设计师简历
20160107104857573.jpg
设计总监:周鹏
毕业于江西服装学院,室内设计专业
曾任杭州亚加装饰主任设计师
绍兴光大装饰首席设计师、设计总监
现任衢州心连心装饰公司设计总监
设计理念:设计的核心是一种创造行为,设计要求新、求异、求变、求不同,否则设计将不能称之为设计。
设计案例:音湖岛、衢州公园一号、维多利亚、衢州花园、新湖景城、紫荆丽江城、香格里拉、碧桂园、香榭丽舍、枫丹白露、阳光水岸、金河湾、中央公园、春江花园、雍景柯苑、月亮湾、新湖兰馨苑、新湖玫瑰园、香榭丽舍等高档小区。

开工画面

2016010710511132.jpg

今日中央公园8-2-102郑总新居开工大吉咯!

201601071052157224.jpg

吉时还没到,做好开工准备工作,设计部周工与工程部汪工按照图纸在墙上标明尺寸

201601071052413226.jpg

大家一起忙碌开工工作…

201601071052561419.jpg

工程部邱工(质检)对新居墙地面进行敲击验房,查看是否存在空鼓

201601071053194878.jpg

业主看方案沟通…

201601071053348219.jpg

201601071055442697.jpg

大家一起探讨后续施工问题…

201601071054061816.jpg

大大的“8”字红艳艳,吉利又喜庆!

20160107105603489.jpg

8:18吉时到,业主点燃鞭炮!开工大吉!

201601071056236707.jpg

郑总敲下开工第一锤!

20160107105700618.jpg

合照一张^^
再次恭喜中央公园8-2-102郑总家开工大吉!也感谢郑总对我们如此的信任,我们一定用心做好后续的施工、管理!选择心连心,一定让您放心!
回复

使用道具 举报

您需要登录后才可以回帖 登录 | 立即注册

本版积分规则

24小时服务热线

131-8570-9118
8:30-17:30(工作时间)
客服邮箱:1417860721@qq.com
心连心微信公众号

Copyright © 2008-2017 QZXLXZS Inc. All Rights Reserved.

备案号:浙ICP备11006888号