×

关注微信公众号

查看: 15391|回复: 0

幸福家园61栋开工大吉!<新中式>散发迷人的东方魅力

[复制链接]

447

主题

564

帖子

1857

积分

超级版主

Rank: 8Rank: 8

积分
1857
QQ
发表于 2016-12-12 14:04:10 | 显示全部楼层 |阅读模式
装修日记
小区楼盘: 幸福家园
装修风格: 新中式
本帖最后由 心连心装饰 于 2017-4-1 16:37 编辑

项目地址:幸福家园61-1-902
建筑面积:120㎡
设计施工单位:衢州市心连心装饰工程有限公司
设计师:彭工
项目经理:张工
质检员:邱工
设计风格:新中式风格
设计理念:作为新中式装修风格,首先所营造的文化氛围是不同的,每一种装修风格都有其特定的文化背景作为支撑,以此来传递特定文化氛围中人们的生活追求,那么新中式风格是以中国传统文化作为背景的,营造的是极富中国浪漫情调的生活空间,因此不管是中国人还是外国人都非常的喜欢这种新中式装修风格,它不仅永不过时,而且时间愈久愈散发出迷人的东方魅力。

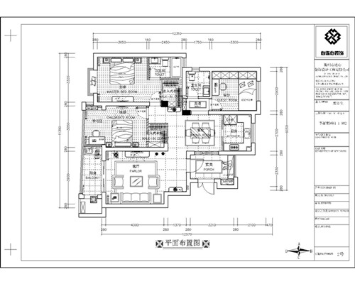
平面布置图
201512081036131881.jpg

客厅效果图——新中式风格
201512081036358681.jpg

设计师简历
201512081037327104.jpg
首席设计师:彭江胜
毕业于安徽建筑工业学院
曾就职杭州恒创装饰公司设计总监
2009年至今任衢州心连心装饰公司首席设计师
中国室内设计协会会员
衢州市知名设计师
设计理念:将生活简单化的同时,又凸显个性,实现简单,典雅的奢华!
工程案例:江西玉山别墅,世纪天成,乐业景观,石梁别墅,怡水苑别墅,衢州花园,金都西江月,维多利亚、世纪锋尚、金河湾,阳光水岸、新湖兰馨苑、新湖玫瑰园、香榭丽舍、中央公园、枫丹白露等高档小区。

开工画面

201512081044345077.jpg

恭喜幸福家园61-1-902郑先生家开工大吉咯!~

201512081050543219.jpg

彭设计与施工人员按照图纸测量标明尺寸

201512081044569.jpg

一起与客户沟通后续施工问题

201512081051203909.jpg

邱质检拿着空鼓锤对墙地面进行敲击,检查是否存在空鼓

201512081051389801.jpg

耀眼的红色燃气表防尘保护袋

201512081052089303.jpg

201512081052296961.jpg

201512081053008821.jpg

开工仪式:彭设计向客户郑重宣誓承诺!
开工仪式:张项目经理向客户郑重宣誓承诺!
开工仪式:邱质检向客户郑重宣誓承诺!
您的新居我们一定用心呵护,一如既往用最积极真诚的态度来对待!一次装修,永久朋友!

201512081053359168.jpg

心连心团队绝对不辜负每一位业主的信任!我们会不断优秀,变得更强大!带给客户更满意的服务!

20151208105350804.jpg
回复

使用道具 举报

您需要登录后才可以回帖 登录 | 立即注册

本版积分规则

24小时服务热线

131-8570-9118
8:30-17:30(工作时间)
客服邮箱:1417860721@qq.com
心连心微信公众号

Copyright © 2008-2017 QZXLXZS Inc. All Rights Reserved.

备案号:浙ICP备11006888号