×

关注微信公众号

查看: 15227|回复: 0

阳光水岸3栋开工大吉!<简欧> 令人心弛神往的写意空间

[复制链接]

447

主题

564

帖子

1857

积分

超级版主

Rank: 8Rank: 8

积分
1857
QQ
发表于 2016-12-12 14:02:36 | 显示全部楼层 |阅读模式
装修日记
小区楼盘: 阳光水岸
装修风格: 简欧风格
本帖最后由 心连心装饰 于 2017-4-1 16:37 编辑

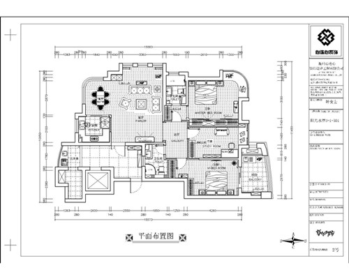
项目地址:阳光水岸3-1-501
建筑面积:140㎡
设计施工单位:衢州市心连心装饰工程有限公司
设计师:彭工
项目经理:张工
质检员:邱工
设计风格:简欧风格
设计理念:本案的设计风格为简约欧式,营造典雅、自然、高贵的气质、浪漫的情调是本案的主题。简约、质朴的简欧是众多人群所喜爱的,生活在繁杂多变的世界里已是烦扰不休,而简单、自然的生活空间却能让人身心舒畅,感到宁静和安逸;藉着室内空间的解构和重组,便可以满足我们对悠然自得的生活的向往和追求,让我们在纷扰的现实生活中找到平衡,缔造出一个令人心弛神往的写意空间。

平面布置图
201512081013282353.jpg
客厅效果图——简欧风格
201512081013453231.jpg

设计师简历
201512081014539384.jpg
首席设计师:彭江胜
毕业于安徽建筑工业学院
曾就职杭州恒创装饰公司设计总监
2009年至今任衢州心连心装饰公司首席设计师
中国室内设计协会会员
衢州市知名设计师
设计理念:将生活简单化的同时,又凸显个性,实现简单,典雅的奢华!
工程案例:江西玉山别墅,世纪天成,乐业景观,石梁别墅,怡水苑别墅,衢州花园,金都西江月,维多利亚、世纪锋尚、金河湾,阳光水岸、新湖兰馨苑、新湖玫瑰园、香榭丽舍、中央公园、枫丹白露等高档小区。

开工画面
201512081015183262.jpg

阳光水岸3-1-501李总家今日吉时开工大吉!

201512081016221078.jpg
张项目经理正在按照图纸在墙上标明尺寸!
心连心余总也一同到场祝贺,参与开工仪式!
20151208101834274.jpg
与客户一起沟通后续施工问题…

201512081018524593.jpg
邱质检对墙地面进行空鼓检查!

201512081019151423.jpg
公司专用管道保护盖,避免施工中垃圾尘土掉落,引发堵塞

20151208102005126.jpg
红艳艳的吉利鞭炮,大大的“8”字

201512081020345696.jpg
201512081021295959.jpg

201512081022371016.jpg
!重点来了!开工仪式:【心连心装饰】郑重庄严向业主宣誓承诺!

201512081023013171.jpg
【心连心装饰】必将用心管理;积极真诚的态度来对待客户,让客户真正用心体会到心连心团队全心全力的服务!一次装修,永久朋友!

201512081023208369.jpg
吉时到来,业主点燃开工鞭炮!
201512081023345521.jpg

20151208102346703.jpg
红火一片,喜庆的场景!

2015120810254987.jpg

201512081026054541.jpg
再次祝贺阳光水岸3-1-501李总家开工大吉!我们做出承诺必将做到!选择心连心,您放心!真正做到省心省力最正规的施工管理!
回复

使用道具 举报

您需要登录后才可以回帖 登录 | 立即注册

本版积分规则

24小时服务热线

131-8570-9118
8:30-17:30(工作时间)
客服邮箱:1417860721@qq.com
心连心微信公众号

Copyright © 2008-2017 QZXLXZS Inc. All Rights Reserved.

备案号:浙ICP备11006888号