×

关注微信公众号

查看: 16573|回复: 0

世纪锋尚13栋开工大吉!明朗舒适、眼前一亮<现代简约>

[复制链接]

447

主题

564

帖子

1857

积分

超级版主

Rank: 8Rank: 8

积分
1857
QQ
发表于 2016-12-12 13:59:53 | 显示全部楼层 |阅读模式
装修日记
小区楼盘: 世纪锋尚
装修风格: 简约风格
本帖最后由 心连心装饰 于 2017-4-1 16:38 编辑

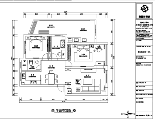
项目地址:世纪锋尚13-1-301
建筑面积:95㎡
设计施工单位:衢州市心连心装饰工程有限公司
设计师:周工
项目经理:汪工
质检员:邱工
设计风格:现代简约风格
设计理念:现代人面临着城市的喧嚣和污染,激烈的竞争压力,还有忙碌的工作和紧张的生活。因而,更加向往清新自然、随意的居室环境。越来越多的都市人开始摒弃繁缛豪华的装修,力求拥有一种自然简约的居室空间。此居室整体采用中性色调,稳重,大气,却又不失品位,有令人眼前一亮的感觉。

平面布置图
201510311548209563.png

效果图——现代简约风格
201510311548314327.jpg

设计师简历
201510311544274193.jpg
设计总监:周鹏
毕业于江西服装学院,室内设计专业
曾任杭州亚加装饰主任设计师
绍兴光大装饰首席设计师、设计总监
现任衢州心连心装饰公司设计总监
设计理念:设计的核心是一种创造行为,设计要求新、求异、求变、求不同,否则设计将不能称之为设计。
设计案例:音湖岛、衢州公园一号、维多利亚、衢州花园、新湖景城、紫荆丽江城、香格里拉、碧桂园、香榭丽舍、枫丹白露、阳光水岸、金河湾、中央公园、春江花园、雍景柯苑、月亮湾、新湖兰馨苑、新湖玫瑰园等高档小区。

开工画面

世纪锋尚13-1-301吉时开工大吉咯!
201510311546087002.jpg
今早天气虽烟雨蒙蒙,但也绝不会影响开工的喜悦!~

201510311546259127.jpg
周设计按照图纸在墙上标明尺寸

201510311546439545.jpg
邱质检对墙地面进行敲击验房,检查是否存在空鼓~

201510311547024355.jpg
吉时快到啦!摆好开工鞭炮

201510311547234582.jpg
红火一片!
感谢选择心连心!我们定不辜负每一位业主朋友对我们的信任与支持!
回复

使用道具 举报

您需要登录后才可以回帖 登录 | 立即注册

本版积分规则

24小时服务热线

131-8570-9118
8:30-17:30(工作时间)
客服邮箱:1417860721@qq.com
心连心微信公众号

Copyright © 2008-2017 QZXLXZS Inc. All Rights Reserved.

备案号:浙ICP备11006888号