×

关注微信公众号

查看: 9675|回复: 0

新湖兰馨苑33栋开工大吉! <现代简约>以简洁和纯净来调节精神的空间

[复制链接]

447

主题

564

帖子

1857

积分

超级版主

Rank: 8Rank: 8

积分
1857
QQ
发表于 2016-12-12 13:56:57 | 显示全部楼层 |阅读模式
装修日记
小区楼盘: 兰馨苑
装修风格: 简约风格
本帖最后由 心连心装饰 于 2017-4-1 16:39 编辑

项目地址:新湖兰馨苑33-1-301
建筑面积:160㎡
设计施工单位:衢州市心连心装饰工程有限公司
设计师:彭工
项目经理:陈工
质检员:邱工
设计风格:现代简约风格
设计理念:对于忙碌的现代人而言,现代简约似乎更受欢迎。简单明亮的舒适环境,足以让人消除一天的烦恼。它没有过多繁复的设计,以简洁的造型、纯洁的质地、精细的工艺为其特征,为现代人展现了更温馨舒适的居住环境。

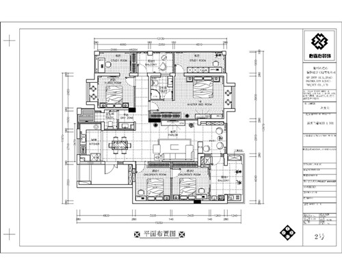
平面布置图
201511211056268238.jpg

客厅效果图——现代简约风格
201511211056455080.jpg

设计师简历
201511211052197509.jpg
首席设计师:彭江胜
毕业于安徽建筑工业学院
曾就职杭州恒创装饰公司设计总监
2009年至今任衢州心连心装饰公司首席设计师
中国室内设计协会会员
衢州市知名设计师
设计理念:将生活简单化的同时,又凸显个性,实现简单,典雅的奢华!
工程案例:江西玉山别墅,世纪天成,乐业景观,石梁别墅,怡水苑别墅,衢州花园,金都西江月,维多利亚、世纪锋尚、金河湾,阳光水岸、新湖兰馨苑、新湖玫瑰园、香榭丽舍、中央公园等高档小区。

开工画面
新湖兰馨苑33-1-301开工大吉咯~
201511211057269197.jpg

开工鞭炮先摆放好,等待吉时!六六大顺~好兆头!

201511211113297437.jpg

陈项目经理正在对门槛进行保护工作

201511211113557441.jpg

与业主一同沟通方案,在后续需施工及注意的位置进行标注

201511211114095917.jpg

开工画面出镜率超高的:<心连心>必备专用燃气表防尘保护袋

201511211114326025.jpg

邱质检对墙地面进行敲击验房,检查是否存在空鼓!<每一次开工这项工作也是必不可少的!>

201511211114494248.jpg

吉时已到,业主准备点燃鞭炮啦!

201511211114591178.jpg

噼里啪啦,开工大吉哟~

201511211115231153.jpg
业主敲下开工吉利第一锤!^_^
再次祝贺新湖兰馨苑33-1-301开工大吉!万事如意,合家幸福!
回复

使用道具 举报

您需要登录后才可以回帖 登录 | 立即注册

本版积分规则

24小时服务热线

131-8570-9118
8:30-17:30(工作时间)
客服邮箱:1417860721@qq.com
心连心微信公众号

Copyright © 2008-2017 QZXLXZS Inc. All Rights Reserved.

备案号:浙ICP备11006888号