×

关注微信公众号

查看: 11718|回复: 0

金河湾12栋开工大吉!自然气息,简洁舒心<简美风格>

[复制链接]

447

主题

564

帖子

1857

积分

超级版主

Rank: 8Rank: 8

积分
1857
QQ
发表于 2016-12-12 13:34:43 | 显示全部楼层 |阅读模式
装修日记
小区楼盘: 金河湾
装修风格: 简美风格
本帖最后由 心连心装饰 于 2017-4-1 16:44 编辑

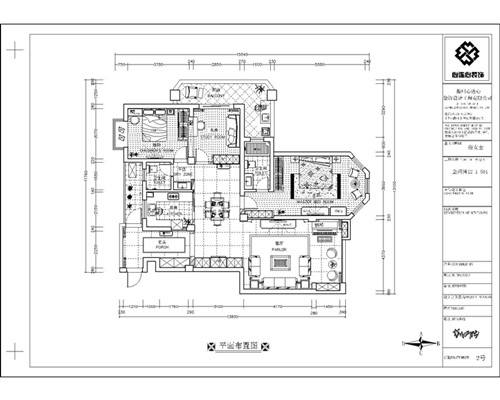
项目地址:金河湾12-1-501
建筑面积:136㎡
设计施工单位:衢州市心连心装饰工程有限公司
设计师:彭工
项目经理:余工
质检员:邱工
设计风格:简美风格
设计理念:本案为不加过多修饰与约束的简美风格,以米黄色为主色调加上简单清新的色彩搭配!散发出迷人的休闲式浪漫,既有着华丽与贵气,又剔除了更多羁绊,贵气而不失自在与随意,更是以功能性为优先考虑。简单的装饰,让空间充满了自然气息,简洁舒心。适合追求舒服,兼顾优雅,既注重起居品质,又不过分张扬的人群。

平面布置图
201509241332571269.jpg

客厅效果图——简美风格
201509241333429198.jpg

设计师简历
201509241334538277.jpg
首席设计师:彭江胜
毕业于安徽建筑工业学院
曾就职杭州恒创装饰公司设计总监
2009年至今任衢州心连心装饰公司首席设计师
中国室内设计协会会员
衢州市知名设计师
设计理念:将生活简单化的同时,又凸显个性,实现简单,典雅的奢华!
工程案例:江西玉山别墅,世纪天成,乐业景观,石梁别墅,怡水苑别墅,衢州花园,金都西江月,维多利亚、世纪锋尚、金河湾,阳光水岸、新湖兰馨苑、新湖玫瑰园、香榭丽舍、中央公园等高档小区。

开工画面

201509241335364697.jpg
【心连心装饰】门槛保护

201509241336111928.jpg
余项目经理按照图纸在墙上标明尺寸

201509241336446473.jpg
201509241336537305.jpg
彭设计、余项目经理与客户一起在讨论后续施工细节

201509241337132370.jpg
彭设计按照图纸,仔细的为客户一一说明

201509241337439287.jpg
吉时到,点燃鞭炮,红红火火!

201509241338098731.jpg
客户敲下开工第一锤!开工大吉!

201509241338501914.jpg

201509241338367488.jpg
邱质检验收检查,对墙地面进行敲击查看是否存在空鼓!

20150924133910492.jpg
合照一张^_^合作愉快!
恭喜金河湾12-1-501何总一家开工大吉!感谢对心连心装饰的信任!我们会一如既往用心管理!
回复

使用道具 举报

您需要登录后才可以回帖 登录 | 立即注册

本版积分规则

24小时服务热线

131-8570-9118
8:30-17:30(工作时间)
客服邮箱:1417860721@qq.com
心连心微信公众号

Copyright © 2008-2017 QZXLXZS Inc. All Rights Reserved.

备案号:浙ICP备11006888号