×

关注微信公众号

查看: 10766|回复: 0

阳光水岸8栋——高贵典雅,不失温馨<简美风格>

[复制链接]

447

主题

564

帖子

1857

积分

超级版主

Rank: 8Rank: 8

积分
1857
QQ
发表于 2016-12-12 13:26:40 | 显示全部楼层 |阅读模式
装修日记
小区楼盘: 阳光水岸
装修风格: 简美风格
本帖最后由 心连心装饰 于 2017-4-1 16:47 编辑

项目地址:阳光水岸8-1-201
建筑面积:110㎡
设计施工单位:衢州市心连心装饰工程有限公司
设计师:付工
项目经理:汪工
质检员:邱工
设计风格:简美风格
设计说明:不加过多修饰与约束的简美风格,散发出迷人的休闲式浪漫,既有着华丽与贵气,又剔除了更多羁绊,贵气而不失自在与随意,更是以功能性为优先考虑。简单的装饰,让空间充满了自然气息,简洁舒心。适合追求舒服,兼顾优雅,既注重起居品质,又不过分张扬的人群。

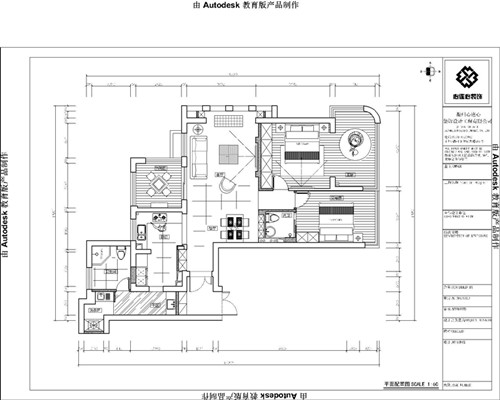
平面布置图
201509081455598777.jpg

客厅效果图——简美风格
20150908150906857.jpg

设计师简历
201509081456566491.jpg
设计师:付淑贞
2009-2011年在台州市椒江区东易日盛-易家装饰任设计师
2011-2014年在上海聚通装饰台州分公司任首席设计师
2015年7月在衢州心连心装饰任设计师
个人案例:台州新明半岛,台州景隆公馆,台州碧海明珠花园,泊盛桃源,新明丽江,香格里拉,维多利亚、衢州花园、紫荆丽江城、君越东方、香格里拉、香榭丽舍、枫丹白露、阳光水岸、金河湾、中央公园、春江花园、新湖兰馨苑、新湖玫瑰园等高档小区

设计理念:设计源于生活,一切以人为本!

开工画面
201509081457353944.jpg
阳光水岸8-1-201吉时开工咯~
201509081459593867.jpg
【心连心装饰】燃气表专用防尘保护袋
201509081500273800.jpg
准备就绪“188”“要发发”吉利的数字
201509081500536133.jpg
恭喜发财,红红火火!
201509081501146049.jpg
汪经理按照图纸在墙上标明尺寸
201509081501251763.jpg

恭喜阳光水岸8-1-201一家开工大吉!
每一位业主的信任就是给我们满满的动力,我们会一直保持下去,并且更完善,不负众望!
回复

使用道具 举报

您需要登录后才可以回帖 登录 | 立即注册

本版积分规则

24小时服务热线

131-8570-9118
8:30-17:30(工作时间)
客服邮箱:1417860721@qq.com
心连心微信公众号

Copyright © 2008-2017 QZXLXZS Inc. All Rights Reserved.

备案号:浙ICP备11006888号