×

关注微信公众号

查看: 10314|回复: 0

新湖兰馨苑38栋2单元180㎡<现代简约:创意、实用、潮流的结合>

[复制链接]

447

主题

564

帖子

1857

积分

超级版主

Rank: 8Rank: 8

积分
1857
QQ
发表于 2016-12-12 10:23:22 | 显示全部楼层 |阅读模式
装修日记
小区楼盘: 兰馨苑
装修风格: 简约风格
本帖最后由 心连心装饰 于 2017-4-1 16:49 编辑

项目工程介绍
项目地址:新湖兰馨苑38-2-702
建筑面积:180㎡
设计施工单位:衢州市心连心装饰工程有限公司
设计师:彭工
项目经理:陈工
质检员:邱工
设计风格:现代简约风格
设计理念:在本案设计中,稳重大气、品位高雅、对比平衡、对称呼应,主色调与整体空间环境和谐统一。正确运用色彩,可以改善居住条件色彩是表达情感的一种语言,它所表达的是一种人类内心中的某些极为复杂的感受。室内墙面、地面、吊顶以及家具陈设,乃至灯具器皿等设计以简洁的造型、纯洁的质地、精细的工艺瞬间俘获人心。吊顶和地面的处理简单大方,简单的吊顶线条不经意间便增加了空间的层次感。整体色调以米色为主,色彩被称作是室内设计的“灵魂”。它是室内设计中最为生动、最为活跃的因素,具有举足轻重的地位。成功的色彩设计是既能满足大家的审美要求又是居住者的个性表达。

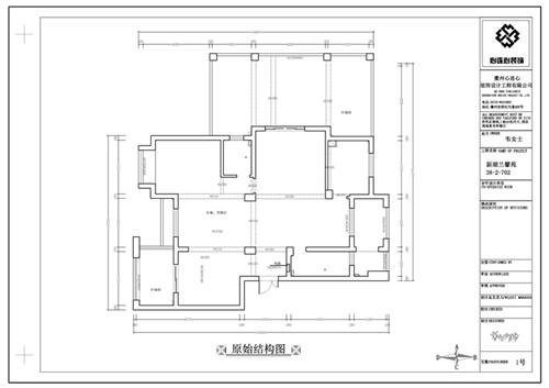
原始结构图
201506031352512754.jpg

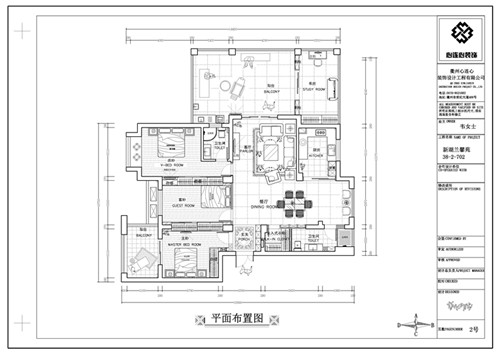
平面布置图
201506031353327805.jpg

客厅效果图——现代简约
201506031354184254.jpg

设计师简历
201506031355242100.jpg
首席设计师:彭江胜
毕业于安徽建筑工业学院
曾就职杭州恒创装饰公司设计总监
2009年至今任衢州心连心装饰公司设计总监
中国室内设计协会会员
衢州市知名设计师
设计理念:将生活简单化的同时,又凸显个性,实现简单,典雅的奢华!
工程案例:江西玉山别墅,世纪天成,乐业景观,石梁别墅,怡水苑别墅,衢州花园,金都西江月,维多利亚,金河湾,阳光水岸等高档小区。

开工画面
201506031356166221.jpg
[新湖兰馨苑]开工咯!
[新湖兰馨苑38栋2单元702室]韦女士开工大吉!

20150603135652960.jpg

201506031357295492.jpg
彭设计与客户探讨下一步施工方案

201506031358293485.jpg
项目经理陈工正在与客户沟通方案

201506031359041105.jpg

20150603135922899.jpg

201506031359436984.jpg
恭喜新湖兰馨苑38-2-702韦女士开工大吉!红红火火…!
我们一定会用心做好接下来的施工,让您放心、省心、开心!<家装选心连心,让您放心的选择>

在衢州家装行业,我们是“装饰行业协会副秘书长单位”
在衢州家装行业,我们是“装饰行业协会副会长单位”
在衢州家装行业,我们是“绿色装修首批倡导单位”
在衢州家装行业,我们被衢州建设局评为“骨干企业单位”
在衢州家装行业,我们每年都被评为“诚信装饰公司”
在衢州家装行业,我们曾上衢州日报被称为“衢州最值得信赖的家装公司“……
10几年来,我们已为千户家庭提供了完美的家装解决方案
10几年来,我们一如既往,定期进行施工现场巡检并严格按照”工程质量验收标准“进行每个工程的分项验收
一次装修,永久朋友!
我们用心呵护每一户家庭,不断被新老客户的认可与信任,在衢州我们已经成为公认的“衢州第一口碑”家装品牌
回复

使用道具 举报

您需要登录后才可以回帖 登录 | 立即注册

本版积分规则

24小时服务热线

131-8570-9118
8:30-17:30(工作时间)
客服邮箱:1417860721@qq.com
心连心微信公众号

Copyright © 2008-2017 QZXLXZS Inc. All Rights Reserved.

备案号:浙ICP备11006888号