×

关注微信公众号

查看: 10663|回复: 0

开化御龙家天下排屋—— 大而不空、厚而不重

[复制链接]

447

主题

564

帖子

1857

积分

超级版主

Rank: 8Rank: 8

积分
1857
QQ
发表于 2016-12-12 10:05:02 | 显示全部楼层 |阅读模式
装修日记
小区楼盘: 其它
装修风格: 新中式
本帖最后由 心连心装饰 于 2017-4-3 10:08 编辑

项目地址:开化御龙家天下排屋
建筑面积:360㎡
设计施工单位:衢州市心连心装饰工程有限公司
设计师:孙工
项目经理:汪工
质检员:邱工
设计风格:现代中式风格
设计理念:新中式排屋整体形式设计体现出了一种庄重、典雅、尊贵,完成古典和现代的交融,新中式别墅设计因为文化内涵的不同,有具体的设计依据和设计要求,对空间处理讲究的整体和灵活性,风格的”纯粹“性、典型的地域性和深刻文化内涵,在布局上还要讲究大气、完整。恬静,淡雅的空间以现代主义手法诠释,注入中式的风雅意境,使空间散发淡然悠远的人文气韵;简约、优美的家居搭配,适合现代人对生活品质的追求!

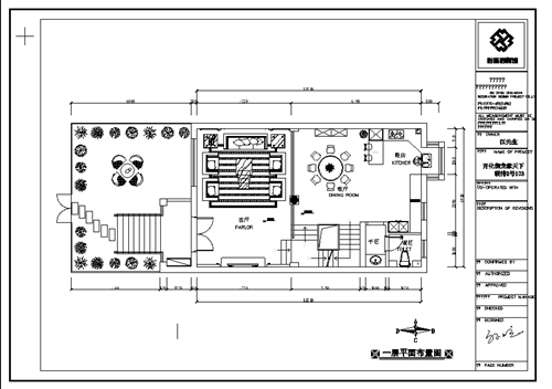
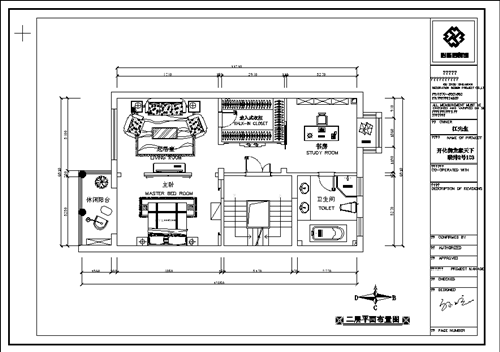
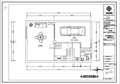
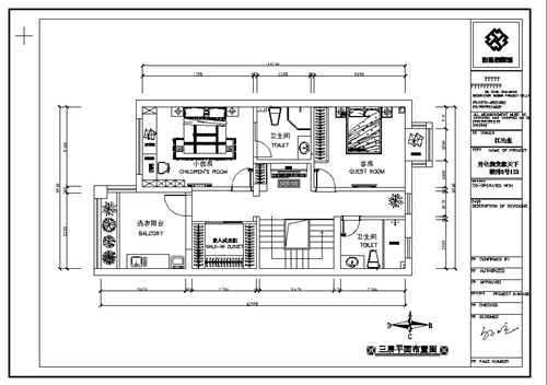
平面布置图
201509080959494496.png
201509080959567169.png

201509081000082351.png

201509081000146963.png

效果图——现代中式风格
201509081002046080.jpg

201509081002169229.jpg
客厅

201509081002395507.jpg
餐厅

201509081003103926.jpg
主卧

201509081003329479.jpg
女儿房

设计师简介
201509081024044563.jpg
首席设计师:孙小龙
毕业于万里学院
2002-2009曾任宁波银翔装饰、宁波名典装饰首席设计师
2009年至今任衢州心连心装饰公司首席设计师
中国室内设计协会会员
衢州市知名设计师
主要设计理念:不同的时代思潮和地区特点来构思不同的设计风格。文化的潮流、社会的发展是没有止尽的,所以设计也是没有止尽的,我抱着一种热枕的态度去对待。
工程案例:衢州花园别墅、维多利亚别墅、新湖景城别墅、天和家园别墅、阳光水岸、金河湾、中央公园等高档小区。

开工画面
201509081005041917.jpg

开化御龙家天下排屋外景!

201509081005321624.jpg
邱质检在墙上订好现场施工管理制度及注意事项

201509081006422884.jpg

201509081006556757.jpg

201509081006066184.jpg
孙设计及汪项目经理对照图纸标明尺寸
20150908100744671.jpg
等待吉时到来。
201509081011509438.jpg
928吉时到!点燃鞭炮
恭祝江总一家开工大吉!恭喜发财!红红火火!
201509081023124584.jpg
合照一张^_^
回复

使用道具 举报

您需要登录后才可以回帖 登录 | 立即注册

本版积分规则

24小时服务热线

131-8570-9118
8:30-17:30(工作时间)
客服邮箱:1417860721@qq.com
心连心微信公众号

Copyright © 2008-2017 QZXLXZS Inc. All Rights Reserved.

备案号:浙ICP备11006888号