×

关注微信公众号

查看: 10601|回复: 0

金河湾21栋 —— 新中式的风雅意境

[复制链接]

447

主题

564

帖子

1857

积分

超级版主

Rank: 8Rank: 8

积分
1857
QQ
发表于 2016-12-12 10:01:55 | 显示全部楼层 |阅读模式
装修日记
小区楼盘: 金河湾
装修风格: 新中式
本帖最后由 心连心装饰 于 2017-4-1 16:51 编辑

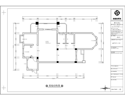
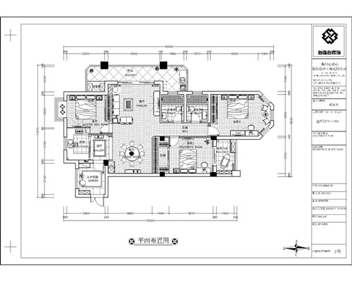
项目地址:金河湾21-1-201
建筑面积:140㎡
设计施工单位:衢州市心连心装饰工程有限公司
设计师:彭工
项目经理:陈工
质检员:邱工
设计风格:新中式风格
设计理念:新中式风格以符合现代人的生活习惯的室内居住空间现实舒适的居住生活。其内部空间布置,如客厅、餐厅、卧室、书房等完全体现现代生活要求。在室内色彩方面,本案以深棕色来打造新中式的气氛,电视背景墙采用琉璃黄花色墙纸来点缀。客厅和餐厅则大量使用木材家具,空间色彩以白色为主,家具采用深棕色为主。新中式风格不是纯粹的传统文化元素的假单叠加,而是通过对传统文化的认识,注入中式的风雅意境,从而使空间散发清雅含蓄、端庄典雅!

原始结构图
201509081421359635.jpg

平面布置图
201509081422213903.jpg

客厅效果图——新中式风格
201509081422368193.jpg

设计师简历_
201509081423164952.jpg
首席设计师:彭江胜
毕业于安徽建筑工业学院

曾就职杭州恒创装饰公司设计总监
2009年至今任衢州心连心装饰公司首席设计师
中国室内设计协会会员
衢州市知名设计师
设计理念:将生活简单化的同时,又凸显个性,实现简单,典雅的奢华!
工程案例:江西玉山别墅,世纪天成,乐业景观,石梁别墅,怡水苑别墅,衢州花园,金都西江月,维多利亚,金河湾,阳光水岸等高档小区。

开工画面
201509081423424630.jpg

恭喜金河湾21-1-201郭先生家开工大吉!

201509081424055198.jpg
邱质检正在准备开工前准备工作!

20150908142435635.jpg
201509081424437238.jpg
现场彭设计和陈项目经理与客户按照图纸细心沟通

201509081429548277.jpg
201509081430363967.jpg
201509081430471876.jpg

感谢选择心连心!我们定不辜负每一位业主朋友对我们的信任与支持!
回复

使用道具 举报

您需要登录后才可以回帖 登录 | 立即注册

本版积分规则

24小时服务热线

131-8570-9118
8:30-17:30(工作时间)
客服邮箱:1417860721@qq.com
心连心微信公众号

Copyright © 2008-2017 QZXLXZS Inc. All Rights Reserved.

备案号:浙ICP备11006888号